Biskop Gunnerus’ gate 14 - Posthuset: Ledige lokaler på Norges største kollektivknutepunkt
Ledig areal 360-1343 kvm 3. etasje
- Område Oslo
- Størrelse 360 - 1 343 kvm
- Plass til ca. 23 - 94 personer
- Byggeår 1976
Planløsning
Etg
Ledig areal
Detalj
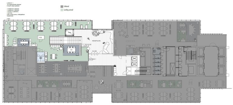
Et kompakt og fleksibelt areal på 360 kvm på Norges største kollektivknutepunkt
Her ligger alt til rette for åpent landskap, men samtidig god mulighet til oppdeling i ulike soner - avhengig av arbeidsform
Her ligger alt til rette for åpent landskap, men samtidig god mulighet til oppdeling i ulike soner - avhengig av arbeidsform
Posthuset ble tegnet av arkitekt Rolf Christian Krognes og ført opp i 1976. Det er i senere tid bygget på, og kraftig modernisert. Med sine 108 meter og 26 etasjer over gateplan, er Posthuset Norges nest høyeste bygg, og det klart høyeste kontorbygget. Utsikten fra etasjene er upåklagelig, og herfra kan en virkelig se hele Oslo med alle dens bydeler, marka i det fjerne, Bjørvika med operaen og ikke minst en flott fjordutsikt. For virkelig å ta inn utsikten så finnes det takterrasse med tilgang for byggets leietakere. Eiendommen er på mer enn 50 000 kvadratmeter og i første etasje er det en sosial møteplass med og en stor personalrestaurant med en variert og spennende meny samt egen kaffebar. Lokalene i 3. etasje er på ca. 1343 m2 BTA. Her ligger alt til rette for åpent landskap, men samtidig god mulighet til oppdeling i ulike soner – avhengig av arbeidsform.
Fasiliteter
- 
    Resepsjon 
- 
    Møteromsenter 
- 
    Sykkelparkering 
- 
    Garderobe 
- 
    Kaffebar 
- 
    Auditorium 
- 
    Parkering 
- 
    Personalrestaurant 
En mer sentral beliggenhet enn det Posthuset har, er det vanskelig å tenke seg. Det ligger ikke ved, men på Norges soleklart største kollektivknutepunkt. I Posthuset kan medarbeidere og besøkende gå tørrskodd til tog, flytog, t-bane og taxi. Buss og trikk er mindre enn tre minutters gange fra resepsjonen. Smidigere og enklere å reise kollektivt og miljøvennlig til og fra jobb enn dette blir det ikke. For de som foretrekker å sykle til jobb, så er det en låsbar innendørs sykkelparkering med ladestasjon for elsykler, garderobe med dusj, tørkerom og håndkleservice. Rett ved eiendommen ligger kjøpesentre som Oslo City og Byporten, med en rekke servicetilbud som butikker og spisesteder i tillegg til alle andre tilbud som Oslo sentrum har å by på.
Nærområdet
- 
    Flytog/tog: 0 m 
- 
    T-bane: 0 m 
- 
    Buss: 50 m 
- 
    Trikk: 100 m 
Et landemerke i byen
Det finnes ikke et bygg i Oslo som fortjener en dronekjøring mer enn Posthuset.
Med sine 108 meter ruver dette ikoniske bygget høyere enn de fleste.
Vi kan garantere at det ikke finnes lignende kontorarbeidsplasser i Oslo.
Posthuset er et miljøvennlig og energieffektivt bygg, med god ventilasjon og lyse åpne rom. I Posthuset jobbes det aktivt med tiltak for å minimere forbruk av energi, vann og avfall. I Entra er vi stolte av å drifte våre bygg med våre egne medarbeidere. Det gjør at ingen kjenner Entra-bygg som vi gjør og derfor kan vi drifte byggene svært effektivt. Fra eiendommen kommer du deg raskt og effektivt rundt i og ut av byen med det store kollektivtilbudet som du finner rett utenfor døren – her er det bare å la bilen stå hjemme. Eiendommen har også en stor innvendig sykkelparkering.
Miljøprofil
- 
    Energiklasse: D 
Kontoretasjene er romslige, noe som gir leietakere stor fleksibilitet i forhold til hvordan en ønsker å tilpasse lokalene i landskap, ulike soner etc. Leietaker i Biskop Gunnerus gate 14 får tilgang til et moderne kontorbygg med de fasiliteter, fleksibilitet og tekniske løsninger dagens og fremtidens arbeidstaker etterspør. Lokalene er utformet slik at de enkelt kan tilpasses dagens og selvfølgelig morgendagens arbeidsformer. Sentralt i hver etasje ligger det smalere midtpartiet i bygget, som bidrar til svært gode lysforhold og gjennomgående utsikt over Oslo syd og nord. Dette gir grunnlag for en flott sosial sone. I de fleste etasjer er det også godt tilrettelagt for et eget resepsjon- og velkomstsenter for de som ønsker dette.
I Posthuset finnes også coworking-løsninger som gir økt fleksibilitet og muligheter for virksomheter som periodevis har behov for adskilte prosjektsoner eller tilleggsløsninger for ansatte.
Som leietaker i Posthuset får du tilgang til en rekke fellesfasiliteter av høy kvalitet:
- Bemannet felles resepsjon
- Stor personalrestaurant med mat av høy kvalitet og et variert tilbud
- Kaffebar med et utvalg av bakervarer
- Felles auditorium og fire møterom
- Tilgang til garderobe med låsbare skap, dusj, tørkerom og håndkleservice
- Stor felles takterrasse
- Låst innendørs sykkelparkering med ladestasjon for elsykler
- Muligheter for å leie parkeringsplasser i byggets underetasje/Oslo City
Kontakt
 
         
         
         
         
         
         
         
         
 
 
 
         
         
         
         
         
         
         
         
         
         
         
         
         
         
        